1 适用范围和用途
SYZTRY5 □()/10-0.4系列真空永磁有载调容调压有载分接开关(以下简称开关),是一种复合电阻过渡埋入式真空永磁有载调容调压分接开关。开关有隔离于变压器的单独油室、利用变压器油做绝缘和灭弧介质、高压切换采用真空管灭弧方式,其结构简单紧凑,便于检修与维护。
适用于供电系统中无功过大、用电设备处于欠压状态运行中,或变压器容量大、用电设备小负载情况下。此开关根据配电智能终端发出的信号,进行有目的地切换分接位置,以及对高压线圈进行星-角切换,低压侧串、并联切换,从而达到调节变压器的容量,保证系统电压的质量,提高系统功率因数,减小无功消耗的有效措施之一。用作额定频率50Hz、额定电压10kV、额定电流至50A以下、三相交流高压供电系统的配电中。
本开关选用技术先进的智能化多功能配电终端,作为开关操作控制机构的中心,其保护可靠,动作灵敏,测量精度高;配合中文菜单式,人机交互界面,显示信息丰富,操作直观简便。
开关使用环境条件:
b. 空气相对湿度不大于95%(+25℃时);
c. 变压器油最低温度 -40℃,最高温度 +100℃.
d. 与垂直面的安装倾斜度不超过5°;
e. 不适用于充满导电尘埃的介质环境。
f. 不适用于腐蚀性气体或蒸汽浓度足以破坏金属及绝缘介质的环境中。
g. 不适用于爆炸危险的场所。
h. 相对海拔2000m以下。
2 型号含义
产品型号含义

3 主要技术特征
3.1 产品执行标准
GB/T10230.1-2007 分接开关 第一部分 性能要求和试验方法
GB/T10230.2-2007 分接开关 第二部分 应用导则
GB/T4208-2008 外壳防护等级(IP代码)
DL/T265-2012 变压器有载分接开关现场试验导则
3.2 安装方式:变压器埋入式安装。
3.3 基本参数
3.3.1 整机绝缘参数见下表2。
表2 额定绝缘水平
额定电压 KV | 额定短时工频耐受电压(有效值) KV | 额定全波雷电冲击耐受电压(峰值) KV |
6 | 30 | 60 |
10 | 35 | 75 |
3.3.2主触头、辅助触头的温升。不得超过下表3的数值,
表3触头温升值 单位:开尔文(K)
触头材料 | 空气 | 油中 |
裸铜 | 35 | 20 |
表面镀银的铜及合金 | 65 | 20 |
3.3.3 基本技术参数
1) 额定电压10kV,最高电压12kV;
2) 最大额定通过电流:高压50A;低压:600 A;
3) 调容方式:高压:星、角转换; 低压:串、并联转换;
4) 支持有载调压的高压分接档位:±250V或 ±500V, 有载调容的最大级电压为7000V.
5) 触头电阻:高压<1mΩ,低压<70μΩ;回路电阻:高压<10mΩ,低压<70μΩ;
6) 调压档位默认为±2.5%,五档连续可调;
7) 调容、调压切换过程采用真空管灭弧室与变压器油做介质灭弧。
4 结构概述
4.1 产品结构
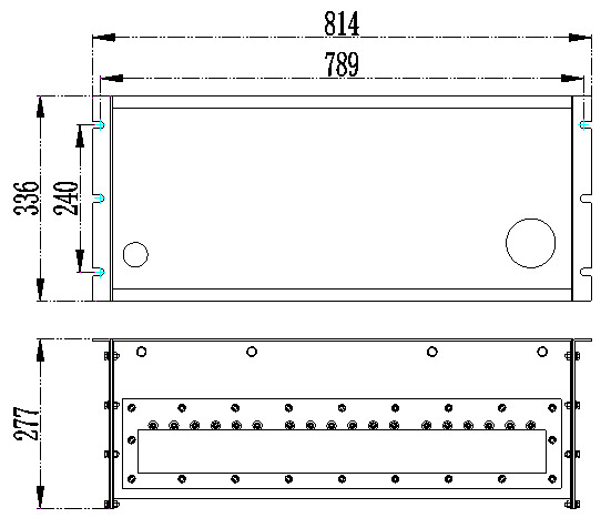
总体为一体箱体,内部被隔断成两大部分。一部分是电器组成元件,另一部分是机械动作。分接开关箱体由壳体、接线固定板、侧面板与上盖板等组成。箱体为矩形结构,内部有电器元器件安装板, 真空管组装模块,调容动、静触头模块,调压动、静触头模块,信号板,两侧有高、低压接线端子等。机构有真空管动作电磁铁,动作支杆,调容永磁电磁铁,调压电磁铁与机构等组成。
4.2 开关装置外形尺寸;见如图1。

图1
4.3 开关的安装;
开关安装与变压器的上端顶部面板的反面上,置于高压侧和低压引线的侧中部,短边端部使用焊接件进行螺栓固定,长边端部使用压板螺栓固定。露出变压器油箱平面以上的是有盖板,控制与拾取信号、电源接线端子,引线电缆等组成。终端智能控制器安装与变压器的侧面,并带有防护措施的配电箱内。
a) 开关的安装垫圈固定于开关上面(可使用502胶水施点固定)。
b) 变压器的顶盖的固定螺栓穿入开关的安装孔内,并将螺母预紧在固定螺栓上(每侧不少于两个),方可以进行吊装。
c) 压板安装应对称进行,并检查密封圈的位置是否到位。
d) 电流互感器的安装:电流互感器是导线穿心式安装,且三个安装方向相同。见如图2

图2
a) 接线端子的定义:见下表4


f) 按照接线定义的线号进行安装,确保一对一连接。
g) 开关烘干温度105°~120°。累计烘干时间请勿超越24小时。
h) 侧面低、高压接线端子见下图3


图3
5 电气系统工作原理
5.1 工作原理
a. 引入电源到配电智能终端,通过智能终端的分、合控制按钮,可使现有载调容调压有载分接开关的分、合闸的功能。
b. 开关合闸后,二次侧输出三相电压、电流,作为智能终端保护器基准参考数值,是开关在此供电系统是否进行调压、调容运行的依据。
c. 当开关正常运行后,智能保护器对配电线路的电流、电压、分合状态进行监控及显示。并对配电线路的运行负载有可靠故障保护功能,故障解除后自动切换到正常状态。
d. 变压器接线见下图4

图4
a. 开关与变压器的连接如下图5



a. 高压绕组连接方式的改变以及低压绕组并、串联的转换。均通过控制系统控制其自动完成。在用电高峰时段可自动将变压器调整到大容量档运行,在用电低谷时时段自动将变压器调整到小容量档运行。
由大容量调为小容量时,低压绕组匝数增加,同时高压绕组变为Y接法,相电压降低,且匝数增加与电压降低的倍数相当,可以保证输出电压不变。同时,大容量调为小容量时,由于低压匝数的增加,铁芯磁通密度大幅降低,使硅钢片单位损耗变小,空载损耗和空载电流相应降低,以达到降损节能的目的。
6 安装、使用
6.1 安装与检查
6.1.1安装前应核对各技术参数,检查本开关各部位是否完好,有无因运输造成的损坏,内部插头、紧固件等是否有松动。
6.1.2 检查产品的合格证,并仔细阅读本产品的使用说明书。
6.1.3 安装前还应进行动作性能与工频耐压的相关检验。
6.1.4 开关安装完毕后,应注入优质变压器油,油位应与变压器油位保持一致,油质的绝缘强度应在40KV以上。
6.1.5 开关与变压器装配及客户使用时,务必在开关使用前进行干燥处理。
6.1.6 利用智能终端进行自动操作:
6.1.6.1 开关只能1分钟合闸一次(内部必须储能充电完成方可)。
6.1.6.2 投入运行前进行10次循环操作,检查机构是否灵活,限位是否可靠。测量变压器高、低侧线圈在分接及高容量和低容位量置时的直流电阻值与出厂数据相比较,以判断是否在正常范围内。
6.1.7 开关投入运行后,用户应定期检验开关油质是否更换,要求耐压保持25KV以上,开关每工作一年,至少采油样一次,进行微水和电压击穿实验。
6.1.8 当系统中因倒闸操作或其他原因,可能造成电压大幅度波动时,应将有关变压器分接开关的自动控制器暂停使用,待操作完毕恢复正常后,在恢复自动控制。
6.1.9原因及排除方法见表5
表5
序号 | 故障现象 | 原因分析 | 解决办法 |
1 | 开关动作滞缓或不动作 | 1) 检查控制器工作电压。 2) 连线错误或接触不良。 3) 运行状态与信号拾取。
4) 调容时状态开关发生故障 5) 开关受外力变形致不动作 | 1) 输入电压220V~230V。 2) 检查各插接头和接触情况。 3) 检查开关位置信号接触情况与连线状态与显示匹配是否一致。 4) 更换状态开关。 5) 调节与顶盖连接螺母。 |
2 | 开关无法控制动作方向 | 1) 调压档位信号开关与连线接触不良。 2) 调容档位信号开关与连线接触不良。 | 1) 更换信号开关,并检查与其连接控制的导线。 |
3 | 高压直流接触电阻超值 | 接触触头氧化、压力弹簧损坏。 | 拆除高压与外部连线,测量开关高压触点间电阻或更换压力弹簧。 |
4 | 低压直流接触电阻超值 | 接触触头氧化、压力弹簧损坏或连接铜排受到外部的拉力。 | 拆除低压与外部连线,测量开关高压触点间电阻或更换压力弹簧。 |
6.1.11使用注意事项
有载调容调压开关的智能终端控制器与变压器有不同的级别耐压标准。因此在变压器进行耐压实验时,严禁带智能终端控制器进行操作实验。
智能终端控制器上电压采样及供电电源,来源于变压器低压出线A、B、C、0相连的四芯插头。所以在做变压器进行低压侧耐压实验时必须拔掉四芯插头。
请务必保证智能终端控制器配套开关侧端子接线正确,接线线号与定义一对一连接到端子上,避免控制器损坏。
本开关的安装与运行维修标准,应参考《有载开关运行维修导则 DL/T574-2010》运行。
7 包装、运输与贮存
7.1 开关出厂时给予了包装,以防止运输过程造成损坏,开关的外包装采用加厚20mm瓦楞纸、内套防水薄膜覆盖进行套装。随同产品装箱文件有:
a. 装箱单;
b. 产品合格证;
c. 产品使用说明书
7.2产品在运输过程中不得受强烈振动,不得翻滚、倒置、碰撞。
7.3产品在运输过程中,应有防止雨淋措施。
7.4当开关起吊时,应将钢丝绳挂在箱体上部吊钩处。
7.5产品应贮存在没有雨雪、有害气体侵袭、干燥、通风、防潮、防震、的库房中。
订货须知:
订购时应注明开关的型号、规格、订购台数、订购的备件
例:订购: S YZ TRY5 315(100)/10-0.4 5台。
配置清单
序号 | 名称 | 配置说明 | 数量 |
1 | 调容调压开关 | SYZTRY5 □()/10-0.4 | 1台 |
2 | 开关密封圈 | 1套 | |
3 | 密封压板 | 6个 | |
4 | 接线端子 | 19位 | 1套 |
5 | 接线端子 | 8位 | 1套 |
6 | 端子密封圈及压板 | 端子配套 | 2套 |
7 | 配电终端及电缆线 | 1套 | |
8 | 电流互感器及电缆线 | 电流互感器的比值 1000:1 | 1套 |
9 | 合格证、说明书 | 含出厂检验报告 | 1份 |
